Auftrag
Machbarkeitsstudie
Projekt- und Ausführungsplanung

Konzept
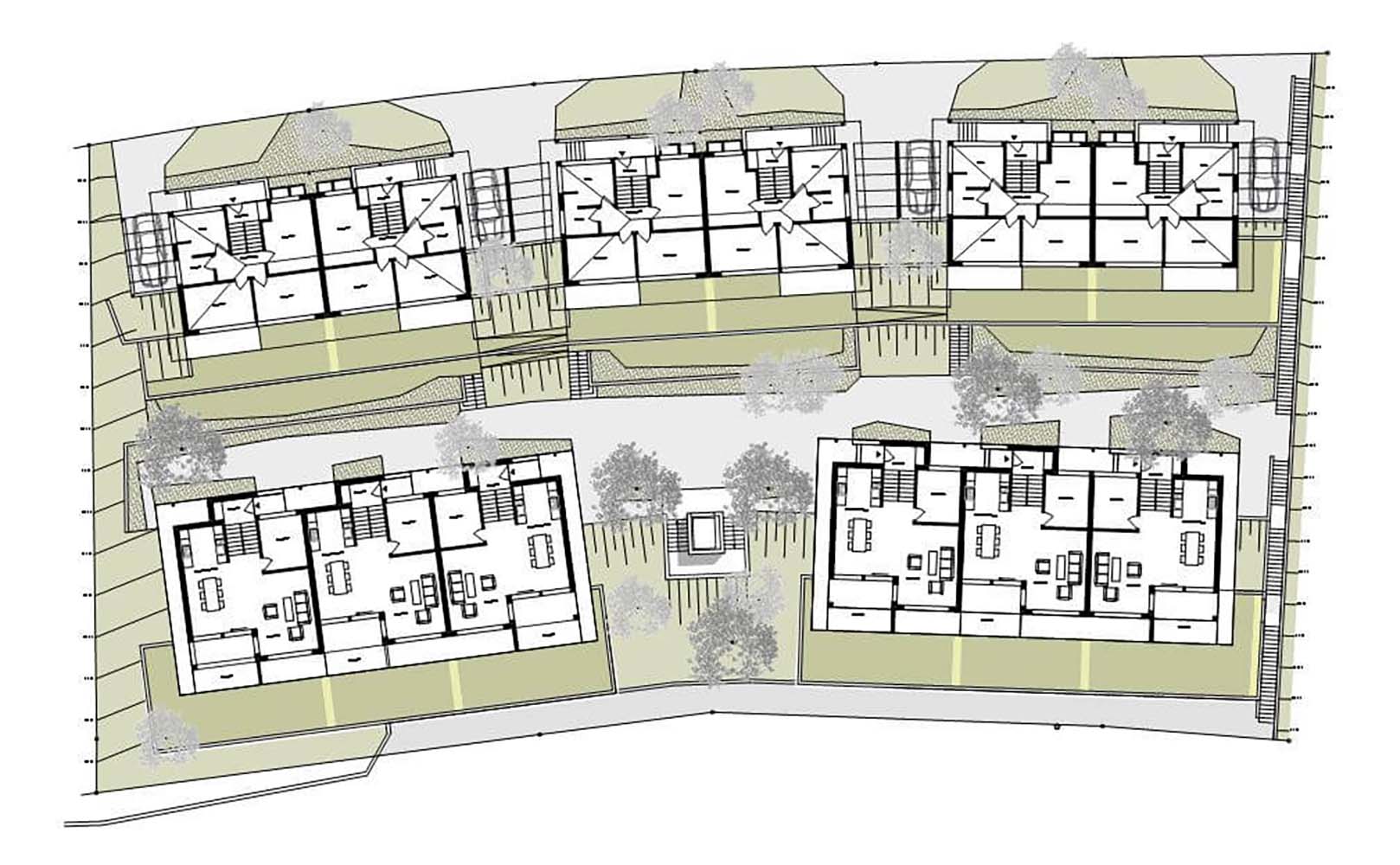
Wohnüberbauung mit 15 Einheiten als verdichtete Bauweise in ländlicher Umgebung.
Die fünf Baukörper stehen losgelöst voneinander, zeilenartig aufgereiht im südorientierten Hang.
Durch geneigte Wiesenflächen und niedrigen Stützmauern fliesst der Hang und lässt den ortstypischen Südhang erleben.
Im Kern der Siedlung entsteht ein gemeinsam nutzbarer, halböffentlicher Hof für die ganze Siedlung. Er dient der Begegnung, bietet die Möglichkeit zum Spiel und hat hohe Aufenthaltsqualität u.a. dank der tollen Aussicht.
